A HOUSE FOR TWO - PEKANBARU

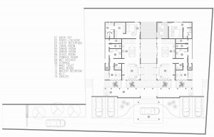
SITUATED IN THE ESTABLISHED INNER CITY OF METRO PEKANBARU, THE EXPANSIVE SITE WILL BE TRANSFORMED INTO A DRAMATIC RESIDENTIAL FOR TWO FAMILIES. A FATHER AND A SON. IT'S DESIGNED TO WITHSTAND HARSH TROPICAL CLIMATE, HOWEVER IS OFFSET BY THE EXPRESSION OF FINELY CONSIDERED DETAIL AND PROPORTION. BOLD MATERIALS WRAP ALL OVER THE EXTERIOR WALLS TO EVOKE A SENSE OF PLAIN OPULENCE. A NEW CONCRETE CANOPY WILL CELEBRATE EVERY VISITORS THROUGH A DELICATE DRIVEWAY FROM THE MAIN GATE. THE COMMUNAL GARDEN BETWEEN THE TWO BLOCKS WILL GREET AND PATH THE WAY TO EACH HOUSE ENTRANCE. THE HOUSE LAYOUT IS STRAIGHTFORWARD AND EACH DWELLING HAVE THEIR OWN INDEPENDENT SERVICES AREA.


http://www.warnerin.com/files/gimgs/th-27_VIEW-A-WDO.jpg
http://www.warnerin.com/files/gimgs/th-27_VIEW-B-copy-WDO.jpg
http://www.warnerin.com/files/gimgs/th-27_WR1-REV4-20150120.jpg
http://www.warnerin.com/files/gimgs/th-27_WR2-REV4-20150120.jpg